Shell Vijfsluizen — Main Building
Called “Park Vijfsluizen”, the development is one of Heijmans' showcase projects for a sustainable, healthy and attractive new neighbourhood for living. In collaboration with Ruijzenaars Landscapes, Kuiper Compagnons, van Egmond architecten and Wurck, the entire area will be designed as an integrated, low carbon and biodiverse residential community.
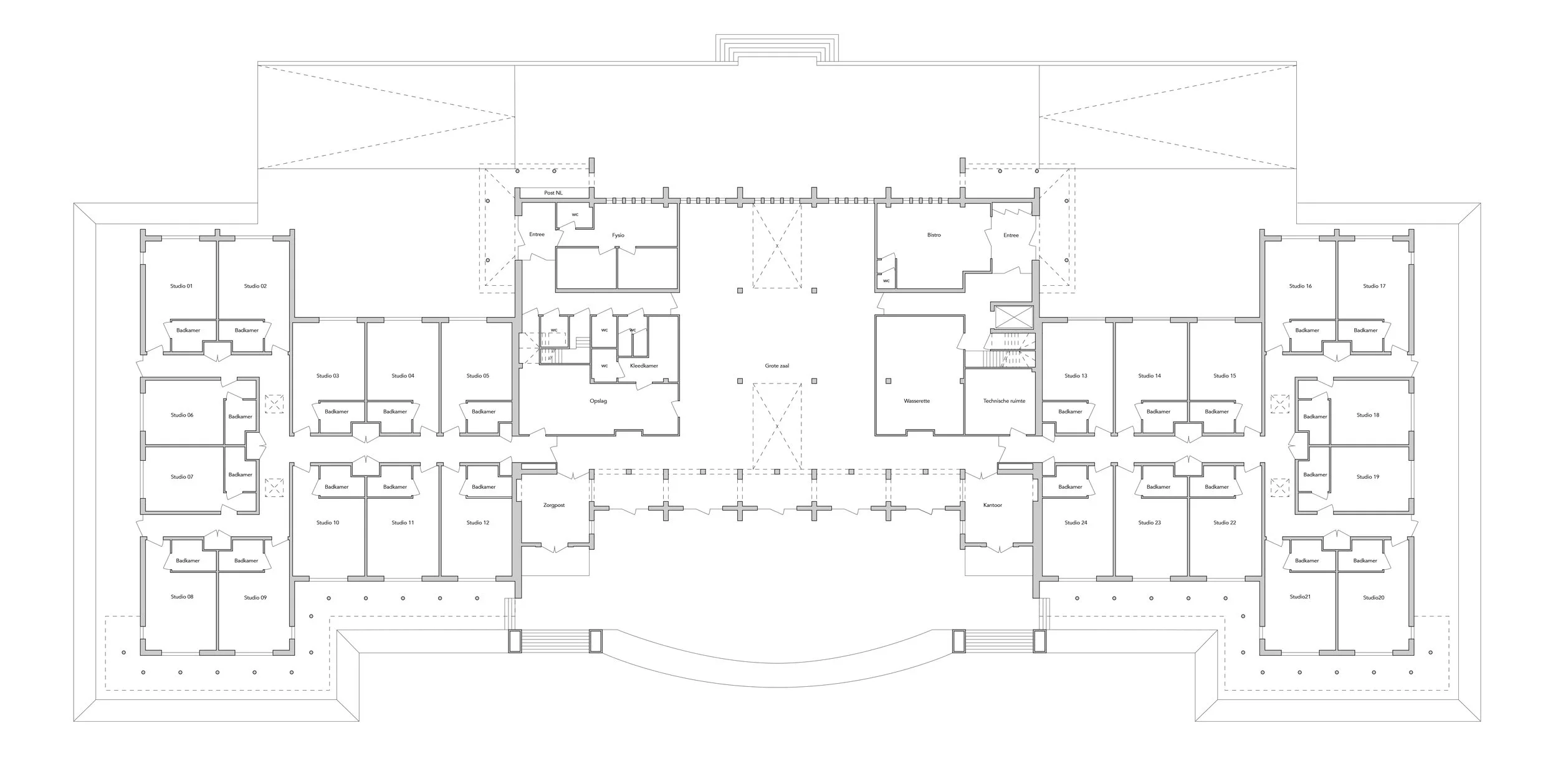
The new plans include approximately 350 homes in and around an imposing building on the site dating from 1953. XVW will design the central courtyard with new housing along two long rows emanating from the almost palatial 50s building that will be given a new function In addition XVW will design a row of 35 special houses that will define the public face of the area.
The new program will breath new life into this iconic building, and will become the heart of the new neighborhood.
Client · AIG Care & Living
Function · Care residence for people with memory disabilities, cafe, physiotherapy practice, parcel delivery lockers
Location · Vlaardingen, NL
Date · 2019-present
Status · Building permit applied for
M2 · 2.700
Design team · Xander Vermeulen Windsant, Rositsa Atanasova, Pedro Gaspar, Ingmar Klappe, Helinde Casteels
Consultants · Constabiel, Instecq+, Aveco de Bondt, Ruijzenaars Landscapes Type of commission: direct commision
Method of construction: steel frame with light weight infill, sans-lime wall blocks, plastered facade insulation system, aluminium and plastic windows
Budget · Undisclosed
XVW architectuur · Architectural design
AIG care & living - Development company
Heijmans · Construction company / Demolition works
Constabiel · Advisors in building technology / Structural design
Stout - Construction company
Instecq+ - Installation and energy advisors
Aveco de Bondt - Building physics advisors
Ruijzenaars Landscapes · Lanscape design
The main building, built in 1953 and designed by Shell’s in-house architect S. van Riet, will be redeveloped by AIG Care & Living to a care residence for people with memory disabilities, a cafe, a practice space for physiotherapy and a central package delivery point for the neighborhood. The new program will breath new life into this iconic building, and will become the heart of the new neighborhood.
Related projects — Back to projects

